Meerhuizenplein

1078TC Amsterdam

€ 2.250

ruler icon 85 m²

ruler icon 3 kamers

Omschrijving

Available per direct, an upholstered 2-bedroom corner apartment with terrace in Amsterdam Zuid.

Location
Discover the charm of living at Meerhuizenplein, located in the vibrant Rivierenbuurt of Amsterdam. This beautiful square combines urban convenience with a peaceful and green environment, perfect for those seeking the best of both worlds.

Meerhuizenplein offers a serene living experience with plenty of greenery and lovely gardens, while you still enjoy the hustle and bustle of the city. The neighborhood is known for its friendly and open character, with various amenities within walking distance. Supermarkets, cozy cafés, and artisanal shops are all nearby, providing everything you need at your fingertips.

The Meerhuizenplein in Amsterdam Zuid is well-served by public transport options, providing convenient access to other parts of the city and the proximity to the A10 motorway ensures a quick connection to the rest of the city and beyond. Additionally, you can reach Amsterdam’s bustling city center within a few minutes by bike.

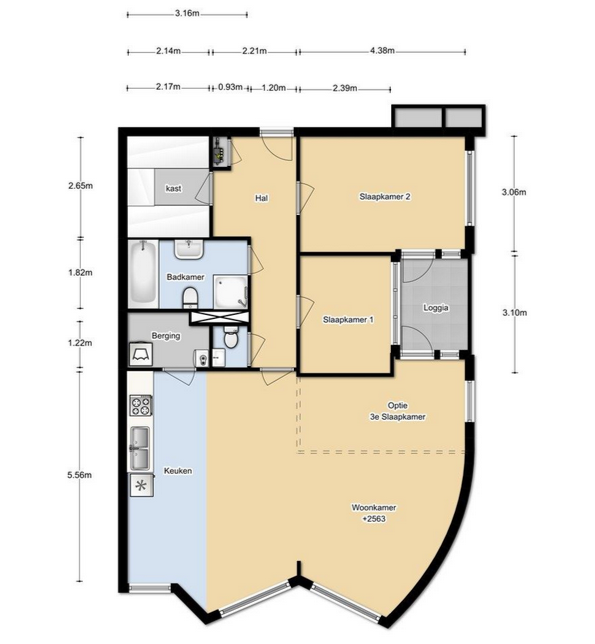
Layout
Upon entering, you’ll encounter the hallway which gives access to all spaces.

The bright living room flows into to the dining area, which seamlessly connects to the open kitchen equipped with modern appliances, offering an practical open layout. The large windows provide plenty of natural light for a pleasant stay. Next to the kitchen there’s a build-in storage which has a separate washing and drying machine and there are storage racks installed.

Conveniently accessible bedrooms via the hallway, are located at the frontside with access to the build-in terrace.

The bathroom and separate toilet are located on the other side of the hallway. The bathroom boasts a shower, bathtub and washbasin with cupboards. In the hallway there’s also a build wardrobe installed.

Completing the apartment a south-facing balcony offers sunlight, perfect for relaxing and growing plants.

**Conditions

Available from:** Immediately.
Contract: Definite contract, model C. Minimum term 12 months.
Rental Price per month: €2250, per month excluding utilities.
Delivery state: Upholstered
Sharing: Not allowed
Pets: Not allowed

For a detailed outline of the rental property allocation procedures, please visit Pararius Tenant Screening Process.

**DISCLAIMER**: This information has been diligently compiled. Nevertheless, we do not assume liability for any errors, omissions, or consequences thereof. All specified sizes and measurements are approximate.

Kenmerken

Overdracht

Vraagprijs

€ 2.250

Aangeboden sinds

20-06-2024

Status

Verhuurd

Aanvaarding

Direct

Bouw

Soort

Appartement, Benedenwoning, Appartement

Soort bouw

Bestaande bouw

Bouwjaar

2002

Oppervlakte & inhoud

Wonen

85 m²

Inhoud

220 m²

Indeling

Aantal kamers

3

Aantal badkamers

1

Badkamervoorzieningen

Ligbad, wastafel, wastafelmeubel

Aantal woonlagen

1

Voorzieningen

Opslagruimte

Energie

Energielabel

A

Buitenruimte

Ligging

In woonwijk, bij ov voorziening, open ligging

Bergruimte

Soort

Inpandig

Menu

Languages